Tillbaka

Tammiston kauppatie 27, Tammisto, 01510 Vantaa 10775800

Uthyres lager - Vantaa

Lastaustoiminnaltaan poikkeuksellisen potentiaalinen varastotila loistavasta kiinteistöstä, Tammiston liike- ja logistiikkakeskittymästä.

Lokaltyp
Lager
1487 m2
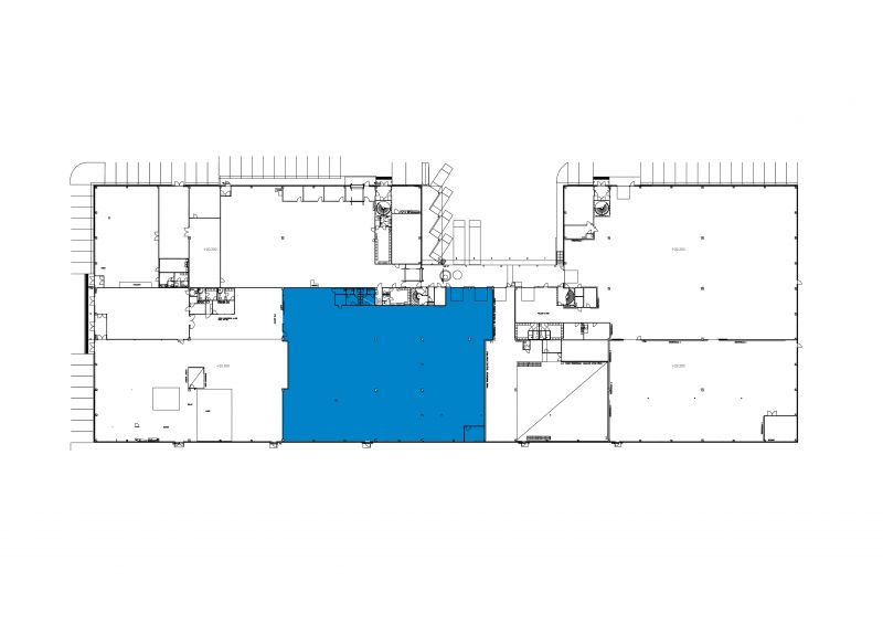
Planlösning

Objektbeskrivning

Om fastigheten
Vapaa korkeus 8,6 m, lastauslaituri, nosto-ovi * 2, lattiakantavuus 2 000 kg/m²

Vuonna 2004 valmistunut rakennus käsittää varasto-, tuotanto-, toimisto- ja myymälätilaa. Kohde sijaitsee Tuusulanväylän ja Kehä III:n risteyksessä lähellä lentokenttää.

Rakennuksesta löytyy katettu yli viiden metrin korkuinen lastauslaituri ja nosto-ovet. Varastointitilojen korkeus on yli kahdeksan metriä. Monikäyttöiset varastotilat ovat kätevästi yhteydessä työ- ja sosiaalitiloihin. Kiinteistön siistit toimistotilat ovat avo- ja kombitoimistoja ja niissä on muun muassa koneellinen jäähdytetty ilmanvaihto.

Kohteeseen on helppo löytää, sillä rakennus sijaitsee näkyvällä paikalla Tuusulanväylän ja Kehä III:n risteyksessä Tammiston ostosalueen ytimessä. Helsinki-Vantaan lentokentälle on matkaa vain kuusi kilometriä. Rakennuksen pihalta löytyy runsaasti nimettyjä asiakaspaikkoja. Tammiston Kauppatie on hyvin saavutettavissa myös julkisilla kulkuvälineillä. Bussipysäkki sijaitsee sadan metrin päässä.

Objektbeskrivning

Tillträde
Heti
Byggår
2003
Våning
1 / 3
Energiklass
Ei lain edellyttämää energiatodistusta

Lastkaj

Kontaktuppgifter

ScanReal Oy LKV

Opus Business Park
Hitsaajankatu 24
00810 Helsinki

info@scanreal.fi

Puh: Visa telefonnummer 020 730 8830

Sopivat toimitilat yhdellä otolla!

Kartoitamme toimitilatarpeesi ja etsimme yrityksellesi parhaiten sopivat vapaat toimitilat. Koska vuokranantajat maksavat palvelumme, on tämä yrityksellesi veloituksetonta.

OTA YHTEYTTÄ - SOVI NÄYTTÖ!
Kaikki kohteemme eivät ole netissä, kerro tilatarpeesi niin kartoitamme vaihtoehdot.

Palvelumme on tilanhakijalle ilmainen

  https://scanreal.fi
Kontakta förmedlaren

Objekt: Tammiston kauppatie 27, Vantaa