Tillbaka

Kiila, Ruoholahdenkatu 21, Kamppi, 00180 Helsinki 10822424

Uthyres kontor - Helsinki

Upea ja täysin remontoitu 209,4 m² Aina Valmis - toimisto

Lokaltyp
Kontor
209,4 m2
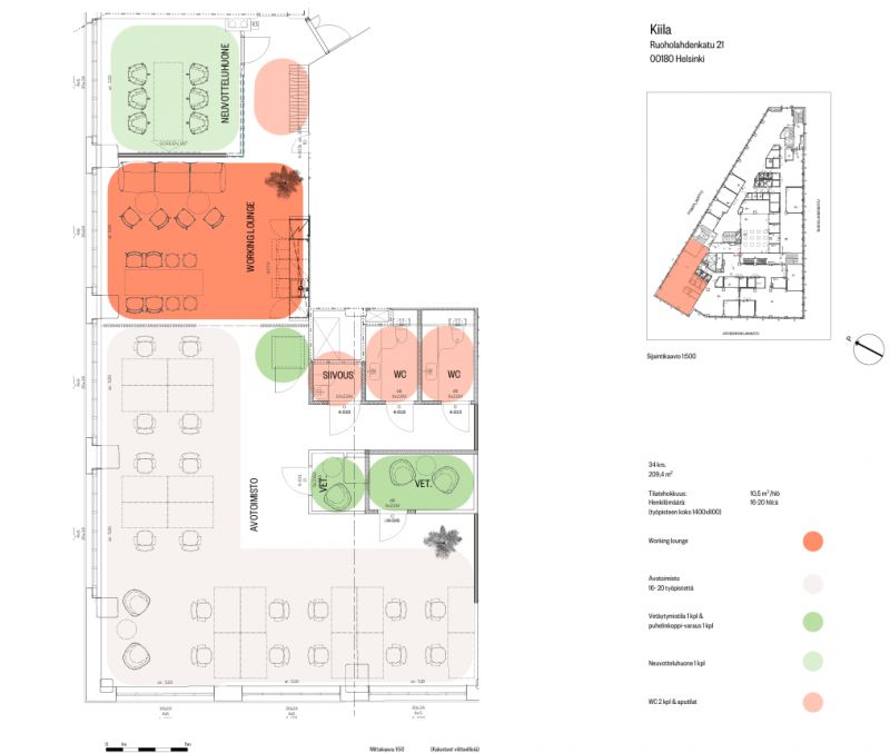
Planlösning

Objektbeskrivning

Om fastigheten
Tämä 209,4 m² Aina Valmis -toimisto sijaitsee kiinteistön neljännessä kerroksessa, tarjoten inspiroivan työympäristön 15–40 hengelle. Tilassa yhdistyvät toimivat työskentelytilat ja käytännölliset ratkaisut: avotilaa tehokkaaseen yhteistyöhön, erillisiä huoneita keskittymistä vaativaan työhön sekä laadukkaasti varusteltu keittiö. Lisäksi tilasta avautuvat upeat näkymät Ruoholahden ja Kampin suuntaan, jotka luovat viihtyisän ja inspiroivan työympäristön.

Tämä toimitila sijaitsee vastuullisesti ylläpidetyssä kiinteistössä, jossa hyödynnetään kotimaista tuulisähköä ja uusiutuvaa kiertolämpöä. Kiinteistöllä on LEED Gold -ympäristösertifikaatti, mikä tarkoittaa korkeatasoista energiatehokkuutta ja kestävää kehitystä tukevia ratkaisuja. Vastuullisuus näkyy niin materiaalivalinnoissa kuin energian käytössä, joten voit työskennellä tiloissa hyvällä omallatunnolla.

Kiinteistön monipuoliset palvelut tekevät työpäivistä sujuvampia ja mukavampia. Käytössäsi ovat aulapalvelut, moderni lounasravintola ja kahvila, joustavasti varattavat neuvottelutilat sekä POOL-joustotilat, jotka tarjoavat mahdollisuuden laajentaa työskentelytilaa tarpeen mukaan. Lisäksi talossa on hotdesk-alue, suihkulliset sosiaalitilat, pyöräparkki ja parkkihalli, josta löytyy myös sähköauton latauspiste. Näiden palveluiden ansiosta arki sujuu vaivattomasti ja tehokkaasti.

Sijainti on erinomainen, aivan ydinkeskustan kupeessa. Liikenneyhteydet ovat loistavat: lähin bussipysäkki sijaitsee vain 120 metrin päässä, metroasema 580 metrin päässä, raitiovaunupysäkille on 150 metriä ja juna-asema löytyy 1,3 kilometrin päästä. Myös lentokentälle pääsee kätevästi, sillä se sijaitsee vain 30 kilometrin päässä. Tämä toimitila tarjoaa täydellisen yhdistelmän keskeistä sijaintia, helppoa saavutettavuutta ja viihtyisää työympäristöä.

Objektbeskrivning

Tillträde
Heti
Byggår
1952
Våning
4 / 7
Energiklass
Ei lain edellyttämää energiatodistusta

Skyltläge

Hiss

Kontaktuppgifter

ScanReal Oy LKV

Opus Business Park
Hitsaajankatu 24
00810 Helsinki

info@scanreal.fi

Puh: Visa telefonnummer 020 730 8830

Sopivat toimitilat yhdellä otolla!

Kartoitamme toimitilatarpeesi ja etsimme yrityksellesi parhaiten sopivat vapaat toimitilat. Koska vuokranantajat maksavat palvelumme, on tämä yrityksellesi veloituksetonta.

Palvelumme on tilanhakijalle ilmainen

  https://scanreal.fi
Kontakta förmedlaren

Objekt: Ruoholahdenkatu 21, Helsinki