Tillbaka

Lönnrotinkatu 11, Kamppi, 00120 Helsinki 10852843

Uthyres kontor - Helsinki

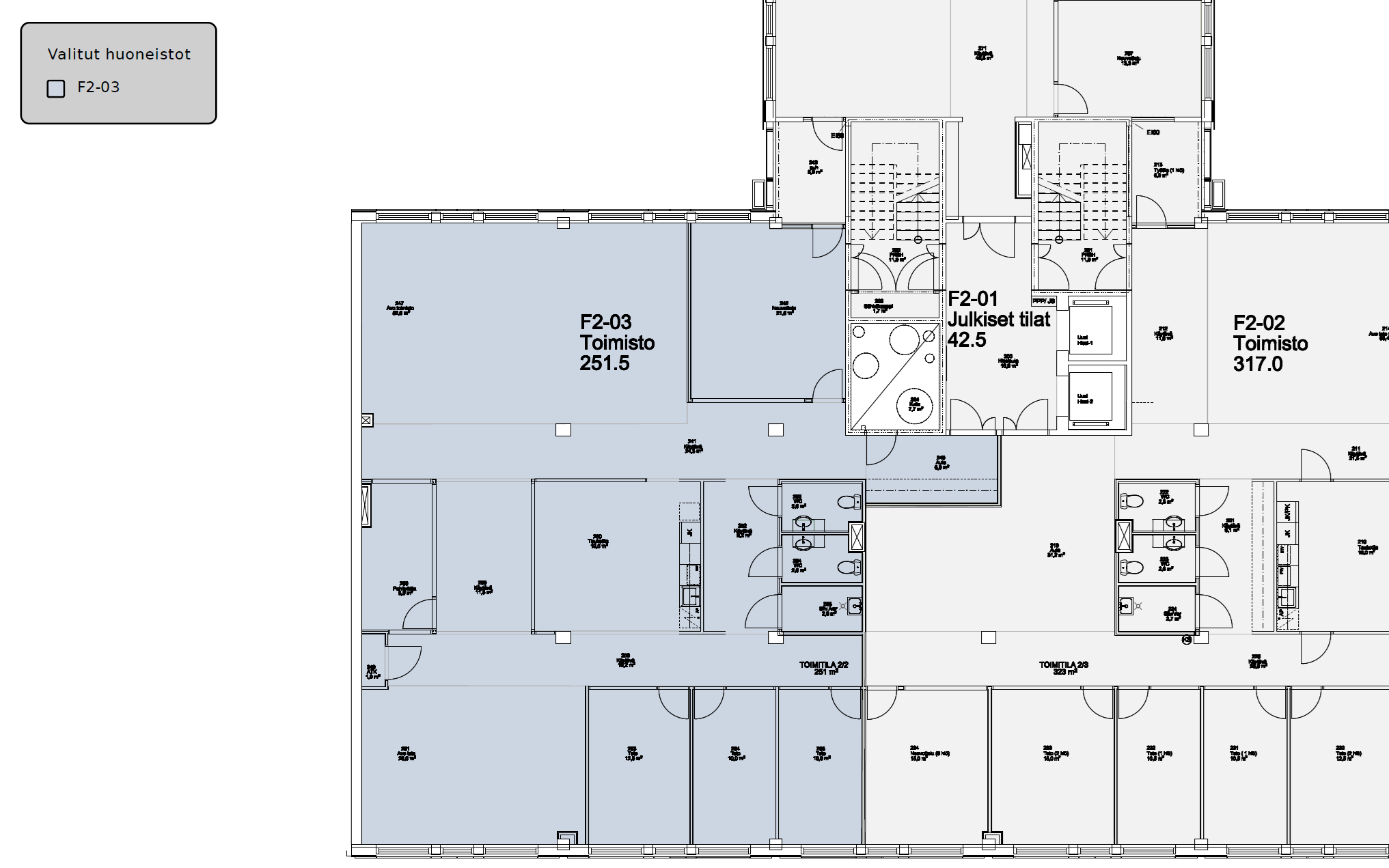
Erinomaisella sijainnilla keskustan tuntumassa 254 m² toimisto.

Lokaltyp
Kontor
254 m2
Planlösning

Objektbeskrivning

Om fastigheten
Tilat on uudistettu 2016 valmistuneen saneerauksen yhteydessä.

Kiinteistössä on polkupyörävarasto ja suihkutilat työmatkapyöräilijöille, sekä suosittu ravintola. Erinomaiset liikenneyhteydet sekä kattavat lähipalvelut.
Läge
Kohde sijaitsee erittäin keskeisellä paikalla Helsingin keskustassa Kampissa, muutaman korttelin päässä Mannerheimintiestä.
Parkering
Kellarikerroksessa on 18 autopaikkaa ja lisäksi piha-alueella 22 autopaikkaa. Kohteen lähellä on myös runsaasti pysäköintilaitoksia.
Service
Puolen kilometrin säteellä sijaitsevat mm. Kampin kauppakeskus, Stockmannin tavaratalo ja Forumin kauppakeskus. Alueella on myös lukuisia ravintoloita ja erikoistavarakauppoja, sekä muita keskustan palveluita.
Kommunikation
Kohde sijaitsee erinomaisten kulkuyhteyksien äärellä. Lähin raitiovaunupysäkki on aivan nurkan takana ja Kampin metroasemalle ja bussiterminaaliin reilun puolen kilometrin kävelymatka. Rautatieasemallekin on vain alle kilometrin matka.

Metroasema 600 m, Raitiovaunupysäkki 300 m, Bussipysäkki 200 m, Juna-asema 800 m, Lentoasema 20,8 km

Objektbeskrivning

Tillträde
Heti
Byggår
1972
Renoveringsår
2016
Våning
2
Energiklass
Ei lain edellyttämää energiatodistusta

Skyltläge

Hiss

Kontaktuppgifter

ScanReal Oy LKV

Opus Business Park
Hitsaajankatu 24
00810 Helsinki

info@scanreal.fi

Puh: Visa telefonnummer 020 730 8830

Sopivat toimitilat yhdellä otolla!

Kartoitamme toimitilatarpeesi ja etsimme yrityksellesi parhaiten sopivat vapaat toimitilat. Koska vuokranantajat maksavat palvelumme, on tämä yrityksellesi veloituksetonta.

OTA YHTEYTTÄ - SOVI NÄYTTÖ!
Kaikki kohteemme eivät ole netissä, kerro tilatarpeesi niin kartoitamme vaihtoehdot.

Palvelumme on tilanhakijalle ilmainen

  https://scanreal.fi
Kontakta förmedlaren

Objekt: Lönnrotinkatu 11, Helsinki