Takaisin

Miestentie 3, Otaniemi, 02150 Espoo 10670445

Vuokrataan toimistotilat, muut tilat - Espoo

Siistiä opetustilaa, joka soveltuu myös toimistokäyttöön Espoon Otaniemessä.

Tilatyyppi
Toimistotilaa
657 m2
Muuta tilaa
657 m2
Yhteensä
657 m2
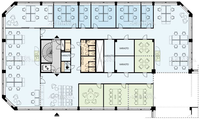
Pohjapiirros

Kohdekuvaus

Kiinteistö
Otaniemen yliopistomiljöön ja Keilaniemen yrityskeskittymän dynaaminen ilmapiiri ympäröi tätä kiinteistöä.

Kiinteistö on saneerattu vuosina 2012–2013. Toimitilat muuntautuvat helposti yritysten tarpeiden mukaan. Avaraan ja valoisaan tilaan voi rakentaa toimistohuoneita tai hyödyntää sitä koulutus- tai avokonttoritilana. Kiinteistön jäähdytysjärjestelmä lisää työskentelyn mukavuutta kesähelteillä. Etelä-Espoossa sijaitseva kiinteistö on loistavien kulkuyhteyksien varrella Kehä I:n vieressä. Keilaniemen metroasemalle on noin 300 metriä ja linja-autot liikennöivät lähellä. Parkkitilaa on pihalla runsaasti. Alle viidensadan metrin päässä aaltoileva meri lisää alueen viihtyisyyttä.

Kohdekuvaus

Vapautuu
Heti
Kerros
3
Energiatehokkuusluokka
Ei lain edellyttämää energiatodistusta
Ota yhteyttä

ScanReal Oy LKV

Opus Business Park
Hitsaajankatu 24
00810 Helsinki

info@scanreal.fi

Puh: Näytä puhelinnumero 020 730 8830

Sopivat toimitilat yhdellä otolla!

Kartoitamme toimitilatarpeesi ja etsimme yrityksellesi parhaiten sopivat vapaat toimitilat. Koska vuokranantajat maksavat palvelumme, on tämä yrityksellesi veloituksetonta.

OTA YHTEYTTÄ - SOVI NÄYTTÖ!
Kaikki kohteemme eivät ole netissä, kerro tilatarpeesi niin kartoitamme vaihtoehdot.

Palvelumme on tilanhakijalle ilmainen

  https://scanreal.fi
Pyydä lisätietoa

Kohteesta Miestentie 3, Espoo