Takaisin

Mestarintie 1, 45200 Kouvola 10797779

Vuokrataan varastotilat - Kouvola

Seitsemän metriä korkeaa tilaa varastohallista, sujuvien kulkuyhteyksien varrella Kouvolassa.

Tilatyyppi
Varastotilaa
15000 m2
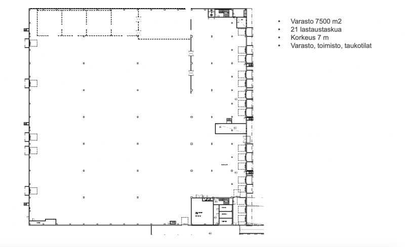
Pohjapiirros

Kohdekuvaus

Kiinteistö
Selkeä varastotila, tilan vapaa korkeus 7 m, lastaustaskuja 18 kpl, ramppi, pieni toimisto, taukotila, sosiaalitilat. Varastotila jaettavissa pienempiin lohkoihin alkaen 3000 m2.

Mestarintie 1 varastokiinteistö sijaitsee Kouvolan Kullasvaaran raide- ja kumipyöräliikennelogistiikan solmukohdassa, 100 km Helsingistä. Kiinteistöltä on sujuvat yhteydet valtateille 6 ja 15 Helsinkiin, Lahteen ja Kotkan satamaan.

Kohdekuvaus

Vapautuu
Heti
Energiatehokkuusluokka
Ei lain edellyttämää energiatodistusta

Näkyvällä paikalla

Lastauslaituri

Ota yhteyttä

ScanReal Oy LKV

Opus Business Park
Hitsaajankatu 24
00810 Helsinki

info@scanreal.fi

Puh: Näytä puhelinnumero 020 730 8830

Sopivat toimitilat yhdellä otolla!

Kartoitamme toimitilatarpeesi ja etsimme yrityksellesi parhaiten sopivat vapaat toimitilat. Koska vuokranantajat maksavat palvelumme, on tämä yrityksellesi veloituksetonta.

Palvelumme on tilanhakijalle ilmainen

  https://scanreal.fi
Pyydä lisätietoa

Kohteesta Mestarintie 1, Kouvola