Takaisin

Vilhonkatu 5, Kluuvi, 00100 Helsinki 10854064

Vuokrataan toimistotilat - Helsinki

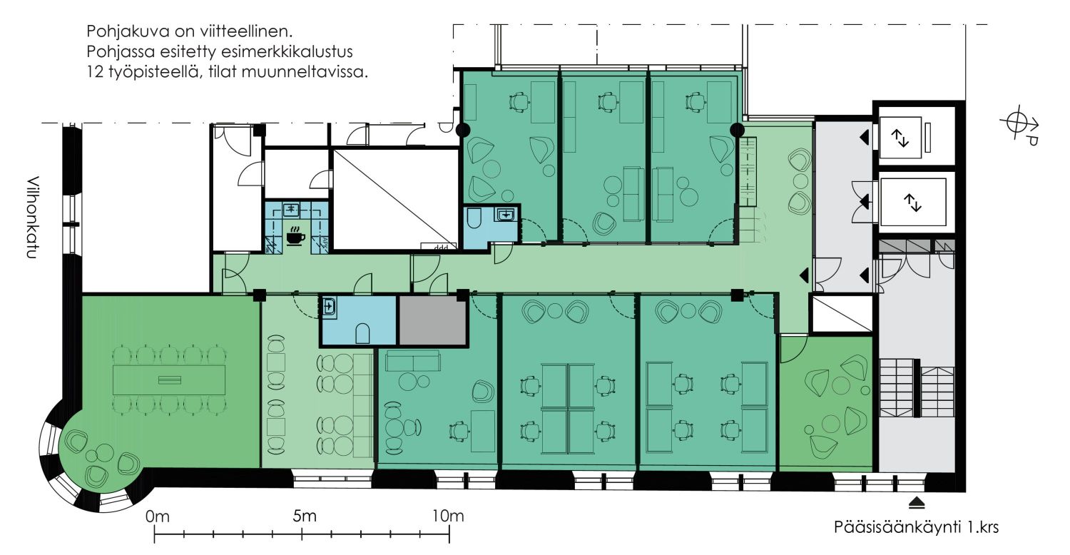
Siisti 267,5 m² toimisto historiallisen kiinteistön neljännestä kerroksesta, loistavien yhteyksien varrelta aivan Helsingin ydinkeskustassa.

Tilatyyppi
Toimistotilaa
267,5 m2
Pohjapiirros

Kohdekuvaus

Kiinteistö
Siistikuntoinen toimisto, jossa hyvän kokoisia huoneita hyvällä äänieristyksellä.

Huoneet soveltuvat esim. terapiatiloiksi, erityisesti alvittomille vuokralaisille.

Sisäänkäynti Vuorikadulta. Uudenveroinen kunto.

Vuonna 1921 valmistunut kiinteistö sopii hyvin keskeistä sijaintia ja arvokasta miljöötä kaipaavalle yritykselle.

Osassa tiloista on upeita, historiaa henkiviä yksityiskohtia. Tilat on tekniikaltaan ja jäähdytykseltään saneerattu moderniin toimistokäyttöön ja ne ovat helposti muunneltavissa yrityskohtaisesti. Katutasossa on liiketiloja ja ylemmissä kerroksissa toimistotilaa.

Keskeinen sijainti takaa myös sen, että kaikki keskustan kaupalliset ja yrityspalvelut ovat lyhyen kävelymatkan etäisyydellä ja asiakasvirrat alueella ovat vertaansa vailla.

Kohdekuvaus

Vapautuu
Heti
Rakennusvuosi
1921
Kerros
4 / 5
Energiatehokkuusluokka
C2018

Näkyvällä paikalla

Hissi

Ota yhteyttä

ScanReal Oy LKV

Opus Business Park
Hitsaajankatu 24
00810 Helsinki

info@scanreal.fi

Puh: Näytä puhelinnumero 020 730 8830

Sopivat toimitilat yhdellä otolla!

Kartoitamme toimitilatarpeesi ja etsimme yrityksellesi parhaiten sopivat vapaat toimitilat. Koska vuokranantajat maksavat palvelumme, on tämä yrityksellesi veloituksetonta.

OTA YHTEYTTÄ - SOVI NÄYTTÖ!
Kaikki kohteemme eivät ole netissä, kerro tilatarpeesi niin kartoitamme vaihtoehdot.

Palvelumme on tilanhakijalle ilmainen

  https://scanreal.fi
Pyydä lisätietoa

Kohteesta Vilhonkatu 5, Helsinki