Back

Tallberginkatu 2, Ruoholahti, 00180 Helsinki 10864906

For rent office - Helsinki

Erikoisvarusteltu 282,5 m² huonekonttori entisessä äänitysstudiossa

Type
Office
282,5 m2

Object description

Property
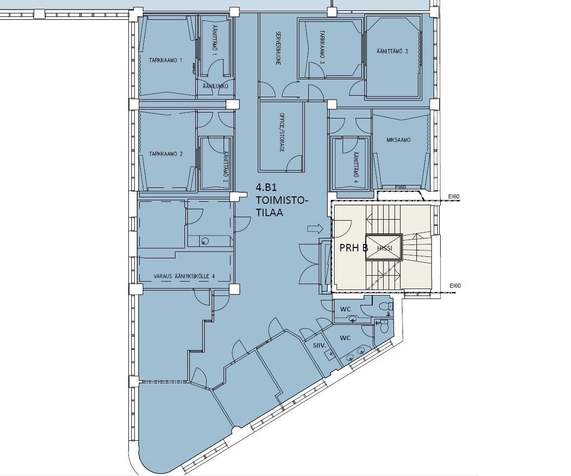
Muuttovalmis ja poikkeuksellisen monipuolinen toimistokokonaisuus Tallberginkatu 2:n neljännessä kerroksessa. Tila on rakennettu alun perin ammattimaiseen puheen äänitystoimintaan, mikä tekee siitä erinomaisen valinnan kaikkeen, missä tarvitaan akustisesti laadukkaita huoneita: podcast-tuotantoon, videosisällön tekemiseen, koulutukseen, haastatteluihin tai vaativaan etäneuvottelutoimintaan. Kokonaisuuteen kuuluu kolme tarkkaamoa, neljä äänitysstudiota, miksaamo, serverhuone sekä toimisto- ja varastotila. Kaikki huoneet on toteutettu äänilukkoratkaisulla, ja tilassa on kaksi WC:tä sekä siivouskomero. Kulku tapahtuu hissillisestä B-rapusta.


Tallberginkatu 2 on BREEAM-sertifioitu kiinteistö, joka tarjoaa vastuullisen ja modernin toimintaympäristön Ruoholahdessa.
Kiinteistön palveluihin kuuluvat aulapalvelu, lounasravintola ja kahvila, neuvotteluhuoneet, POOL-joustotilat, parkkihalli, pyöräparkki, suihkulla varustetut sosiaalitilat sekä sähköauton latauspisteeet. Ruoholahti tarjoaa erinomaiset pyörä- ja joukkoliikenneyhteydet kantakaupunkiin, ja meren läheisyys tekee ympäristöstä viihtyisän niin arjessa kuin vieraillekin.

Object description

Release date
Heti
Building year
1938
Renovation year
1993
Floor
4 / 7
Energy efficiency class
E2007

On a visible place

Elevator

CONTACT

ScanReal Oy LKV

Opus Business Park
Hitsaajankatu 24
00810 Helsinki

info@scanreal.fi

Puh: Show phone number 020 730 8830

Sopivat toimitilat yhdellä otolla!

Kartoitamme toimitilatarpeesi ja etsimme yrityksellesi parhaiten sopivat vapaat toimitilat. Koska vuokranantajat maksavat palvelumme, on tämä yrityksellesi veloituksetonta.

OTA YHTEYTTÄ - SOVI NÄYTTÖ!
Kaikki kohteemme eivät ole netissä, kerro tilatarpeesi niin kartoitamme vaihtoehdot.

Palvelumme on tilanhakijalle ilmainen

  https://scanreal.fi
More info

Object: Tallberginkatu 2, Helsinki